Flat

  • Offers Over £120,000
121 Glencroft Road, Glasgow, G44 5RN
Under Offer
Flat
121 Glencroft Road, Glasgow, G44 5RN
  • Offers Over £120,000

Overview

  • Flat
  • Property Type
  • 3
  • Bedrooms
  • 1
  • Bathroom

Description

A beautifully presented and imaginatively altered main door lower cottage flat. This bespoke property enjoys a prime corner position and benefits from a useful basement and large detached garage. The property occupies a convenient location within the established and popular district of Croftfoot.

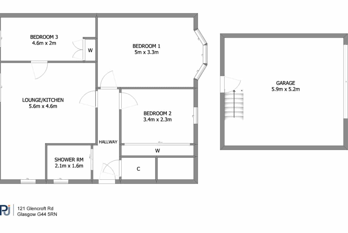
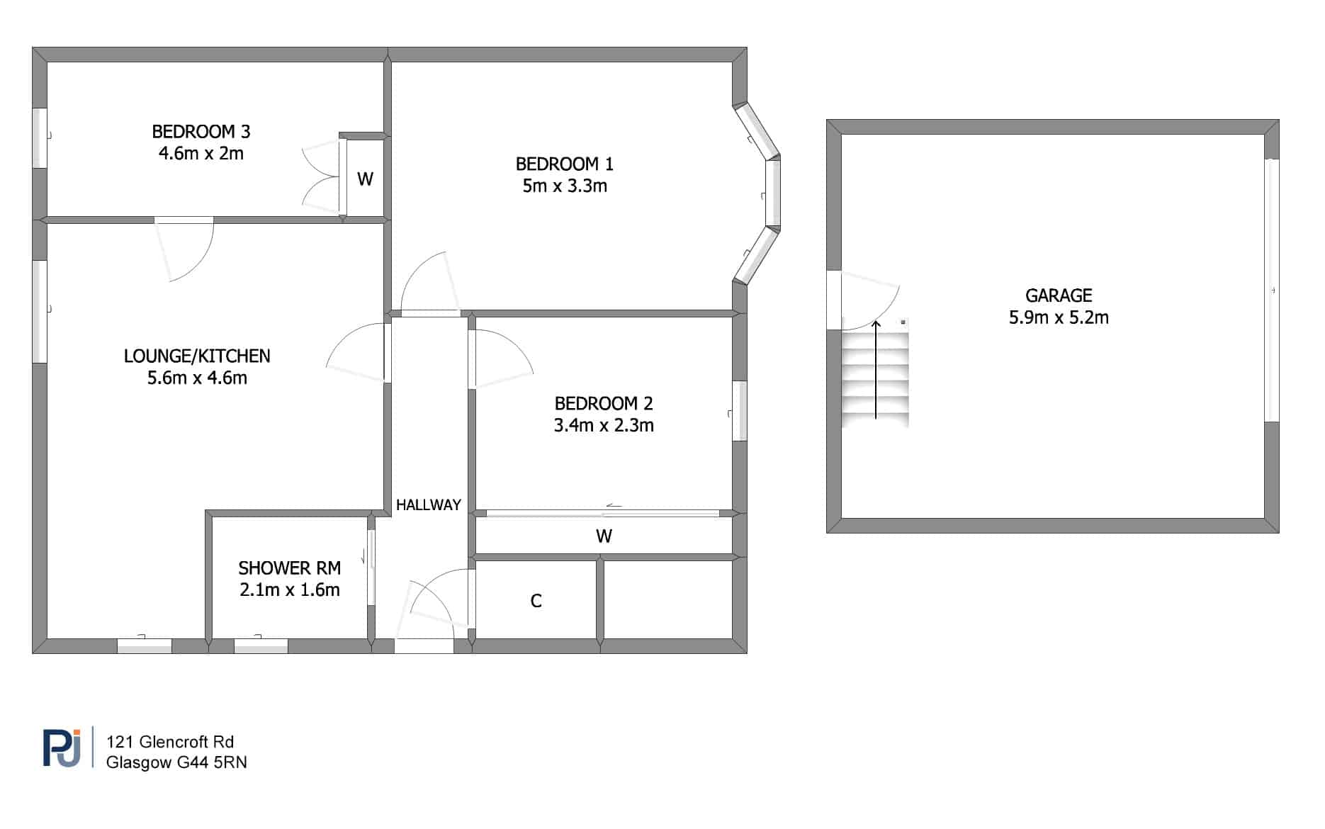
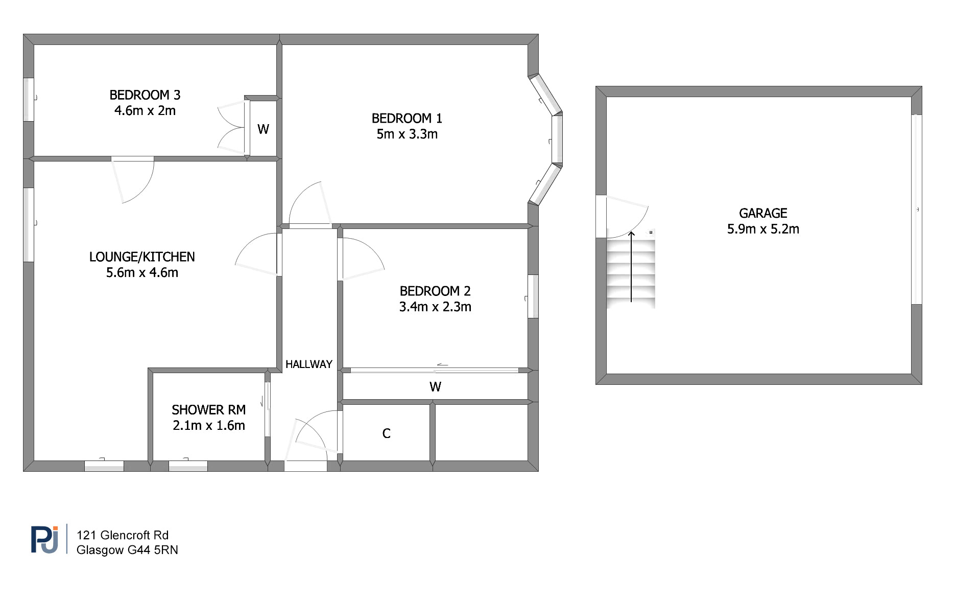
Benefitting from a recent programme of modernisation this beautifully appointed main door cottage flat provides versatile accommodation. The property is accessed by a stone path with well maintained gardens on either side, in turn leading to a short set of stairs opening onto a double glazed entrance door into an entrance porch complete with tiled floor. A further beautiful double glazed inner entrance door with glass feature panel then opens onto the reception hallway of the property which benefits from recently laid wooden flooring .To the right is a large walk in storage cupboard which has lighting and and extends to approximately around 6 feet -and has wall sockets which could be used for further appliances and storage. To the rear of the property there is an attractive formal lounge with a particular feature being the adjacent open plan fitted kitchen. The kitchen incorporates a range of base and wall-mounted storage units, complementary work top surfaces, convenient breakfast bar area and a range of appliances. Continuing, this excellent home offers three impressive bedrooms which are generously sized and may be versatile it their us. Particularly the third which is often utilised as a separate dining room/home office. The two remaining bedrooms benefit from deep storage cupboards off. The accommodation is completed by a well-appointed shower room featuring a low set W.C. wash hand basin and corner positioned shower cubicle. The property is further enhanced with a neutral decorative theme, recently installed flooring within the hallway and lounge, a system of gas central heating and double-glazed window units.

Externally the property offers beautifully maintained private gardens positioned to the front and rear. There is a shrubbed and beautifully landscaped front garden together with a substantial rear garden, beautifully presented and with the convenience of artificial grass. Continuing to rear there is a further shrubbed area, additional pleasant patio section and a large glass greenhouse complete with sliding doors. Further benefits include large basement storage area (incorporating an abundance of onward potential) and a large, detached garage complete with power and lighting.

The property is situated within the highly popular Croftfoot district to the south of Glasgow and is conveniently placed for access to all local amenities including schools at both primary and secondary levels, shops, and excellent public transport services. In addition to this, there are excellent road links close by giving easy access to Glasgow City Centre and the Central Belt motorway network.

The Energy Performance Rating For This Property Is Band C.

Property Documents

Floor Plan
  • Address 121 Glencroft Road
  • City Glasgow
  • Postal Code G44 5RN
  • Area Glasgow

Details

Mortgage Calculator

Monthly
  • Down Payment
  • Loan Amount
  • Monthly Mortgage Payment
£
%
%

Floor Plans

image

Description:

360° Virtual Tour

Contact Information

View Listings
Shawlands

Enquire About This Property

Similar Listings

Compare listings

Compare
Shawlands
  • Shawlands