Flat

  • Offers Over £180,000
Flat 3/3, 308 Old Rutherglen Road, Glasgow, G5 0UN
Available
Flat
Flat 3/3, 308 Old Rutherglen Road, Glasgow, G5 0UN
  • Offers Over £180,000

Overview

  • Flat
  • Property Type
  • 2
  • Bedrooms
  • 2
  • Bathrooms

Description

Located within the highly revered pocket of New Gorbals, within Glasgow's vibrant and cosmopolitan Southside, is this impressive 2-bedroom apartment. Boasting generous proportions, the bright and airy accommodation has been well maintained throughout and comes with the additional benefit of Resident parking bays.

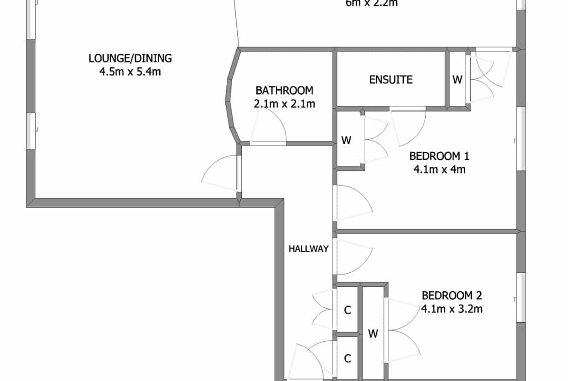
Enjoying a highly convenient location this attractive apartment has been maintained to a good standard and offers flexible accommodation of generous proportions. Comprising shared entrance accessed a via security-controlled entrance system, inner stairwell and with lift facility. The apartment itself offers a welcoming reception hallway with convenient storage off. Forming the practical hub of the home is the free-flowing lounge and open plan dining area with a modern fitted breakfasting kitchen positioned to side. This incorporates a range of base and wall mounted storage units complete with complementary splashback, co-ordinated work top surfaces, and a range of integrated appliances. There is ample space for a dining table and chairs to side. The interior continues with two double sized bedrooms, the principal with a convening En-suite positioned off and both with fitted wardrobes. A modern fitted bathroom benefiting from a three-piece suite with shower completes the accommodation overall. The interior is complemented with a neutral decorative theme, a system of gas central heating and double-glazed window units. Externally the property enjoys off street resident bays available to front whilst there are communal gardens surrounding.

This is one of the most desired addresses of the New Gorbals, with its fantastic proximity to the ever popular merchant city and the city centre. This property is sure to attract a wide range of prospected buyers as there is excellent local amenities within a short walk as well as gyms, Glasgow Green and the Clyde walkway. With great public transport links and excellent road links the property enjoys ease of access across the central belt.

The Energy Performance Rating For This Property Is Band C.

Property Documents

Floor Plan
  • Address Flat 3/3, 308 Old Rutherglen Road
  • City Glasgow
  • Postal Code G5 0UN
  • Area Glasgow

Details

Mortgage Calculator

Monthly
  • Down Payment
  • Loan Amount
  • Monthly Mortgage Payment
£
%
%

Floor Plans

image

Description:

360° Virtual Tour

Contact Information

View Listings
Shawlands

Enquire About This Property

Similar Listings

Compare listings

Compare
Shawlands
  • Shawlands