Flat

  • Offers Over £105,000
158 Montford Avenue, Kings Park , Glasgow, G44 4NY
Under Offer
Flat
158 Montford Avenue, Kings Park , Glasgow, G44 4NY
  • Offers Over £105,000

Overview

  • Flat
  • Property Type
  • 3
  • Bedrooms
  • 1
  • Bathroom

Description

**CLOSING DATE FOR OFFERS TUESDAY 14TH APRIL @ 12 NOON ** This well-positioned and impressive main door upper cottage flat offers a highly flexible four-apartment layout, complemented by a delightful south-facing rear garden and elevated open views to the front across the surrounding district and beyond.

Internally, the property is presented in immaculate condition and is certain to impress upon inspection. Notable features include double glazing, and a gas-fired central heating system powered by a Vokera combination boiler.

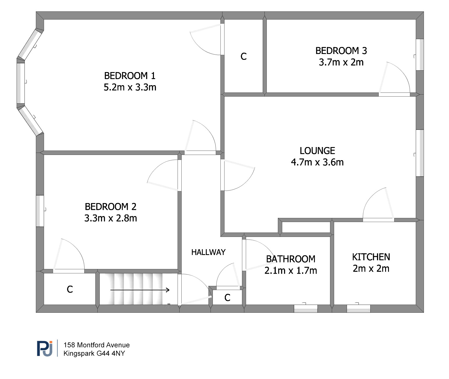
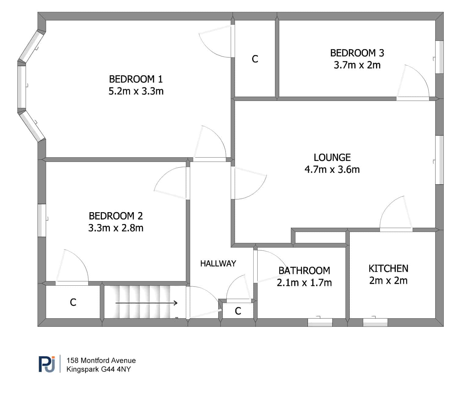
The accommodation begins with a welcoming entrance vestibule, with a staircase leading to the upper level where all principal apartments are located. To the rear, a bright and exceptionally spacious lounge provides access to a versatile dining room, which could also serve as a third bedroom, as well as a well-appointed kitchen.

Positioned to the front of the property are two generously proportioned double bedrooms, both benefiting from built-in storage, with the principal bedroom further enhanced by an attractive bay window. A three-piece bathroom completes the internal accommodation.

Externally, the rear garden enjoys a sunny south-facing aspect, ensuring an abundance of natural light throughout the day.

Ideally situated within a highly sought-after pocket of Kings Park, the property is conveniently located close to a range of local amenities. These include well-regarded primary and secondary schools, Asda supermarket, Tesco Metro, and excellent public transport links including Kings Park train station. A wider selection of shops, cafes, bars, and restaurants can be found nearby in Shawlands and along Pollokshaws Road. For commuters, there are excellent road links nearby, including easy access to the M74, Glasgow City Centre, and the wider Central Belt motorway network.

The Energy Performance rating on this property is Band D.

Property Documents

Floor Plan
  • Address 158 Montford Avenue, Kings Park
  • City Glasgow
  • Postal Code G44 4NY
  • Area Glasgow

Details

Mortgage Calculator

Monthly
  • Down Payment
  • Loan Amount
  • Monthly Mortgage Payment
£
%
%

Floor Plans

image

Description:

Contact Information

View Listings
Burnside

Enquire About This Property

Similar Listings

Compare listings

Compare
Burnside
  • Burnside