Flat

  • Offers Over £180,000
Flat 3/4, 9 Ashgrove Road, Dalmarnock , Glasgow, G40 4AF
Available
Flat
Flat 3/4, 9 Ashgrove Road, Dalmarnock , Glasgow, G40 4AF
  • Offers Over £180,000

Overview

  • Flat
  • Property Type
  • 2
  • Bedrooms
  • 2
  • Bathrooms

Description

Located within the sought-after Riverside Development, just three miles east of Glasgow City Centre, this smartly presented third-floor flat was completed in 2021 and offers stylish, contemporary accommodation finished to a high standard. The property enjoys excellent natural light throughout, enhanced by floor-to-ceiling windows, and will not fail to impress upon inspection.

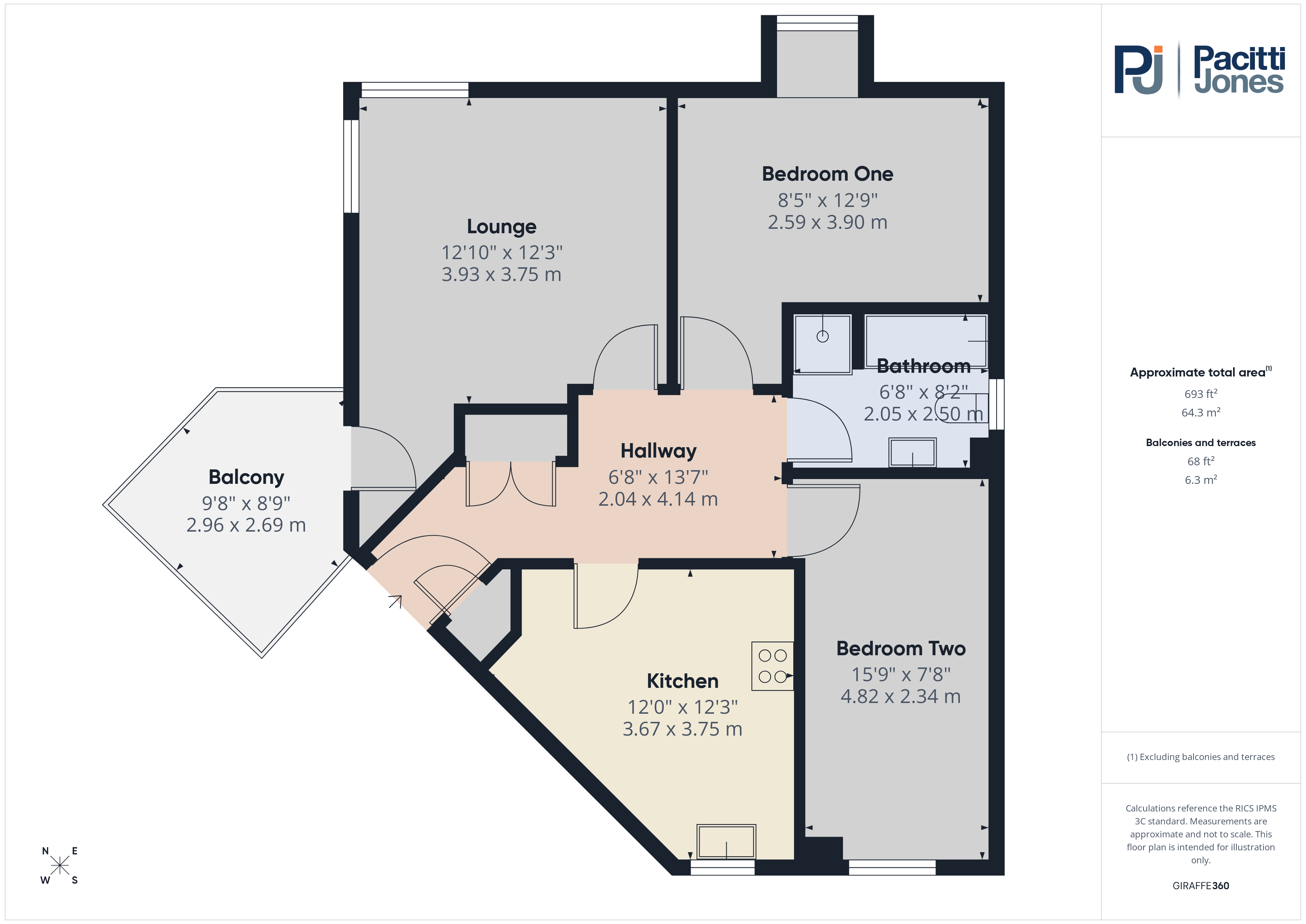
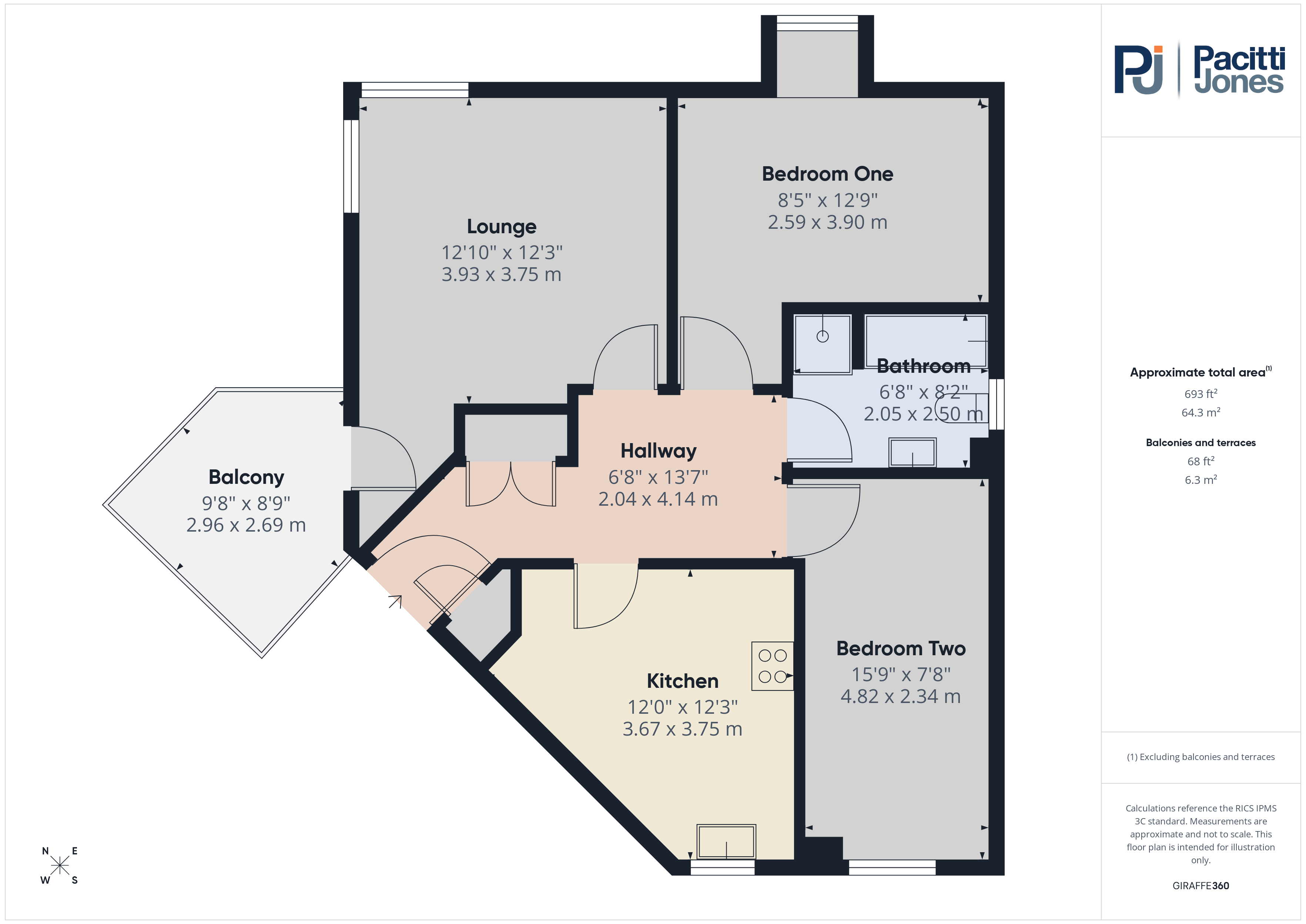
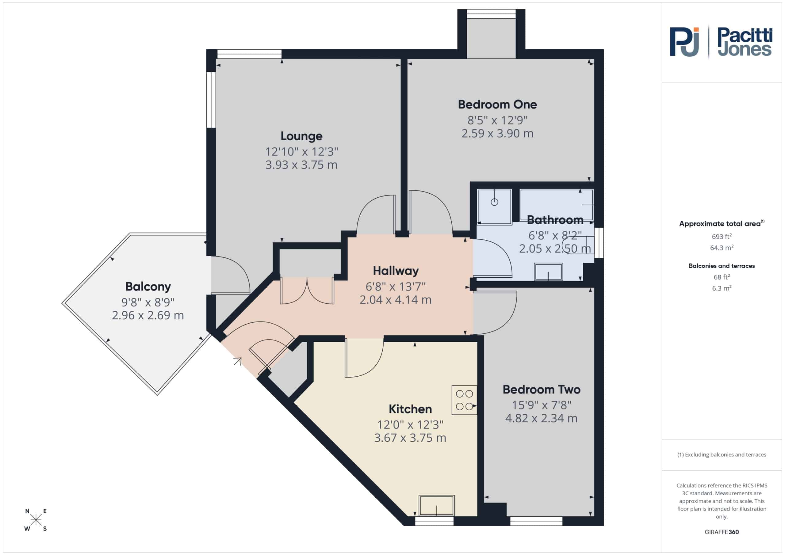
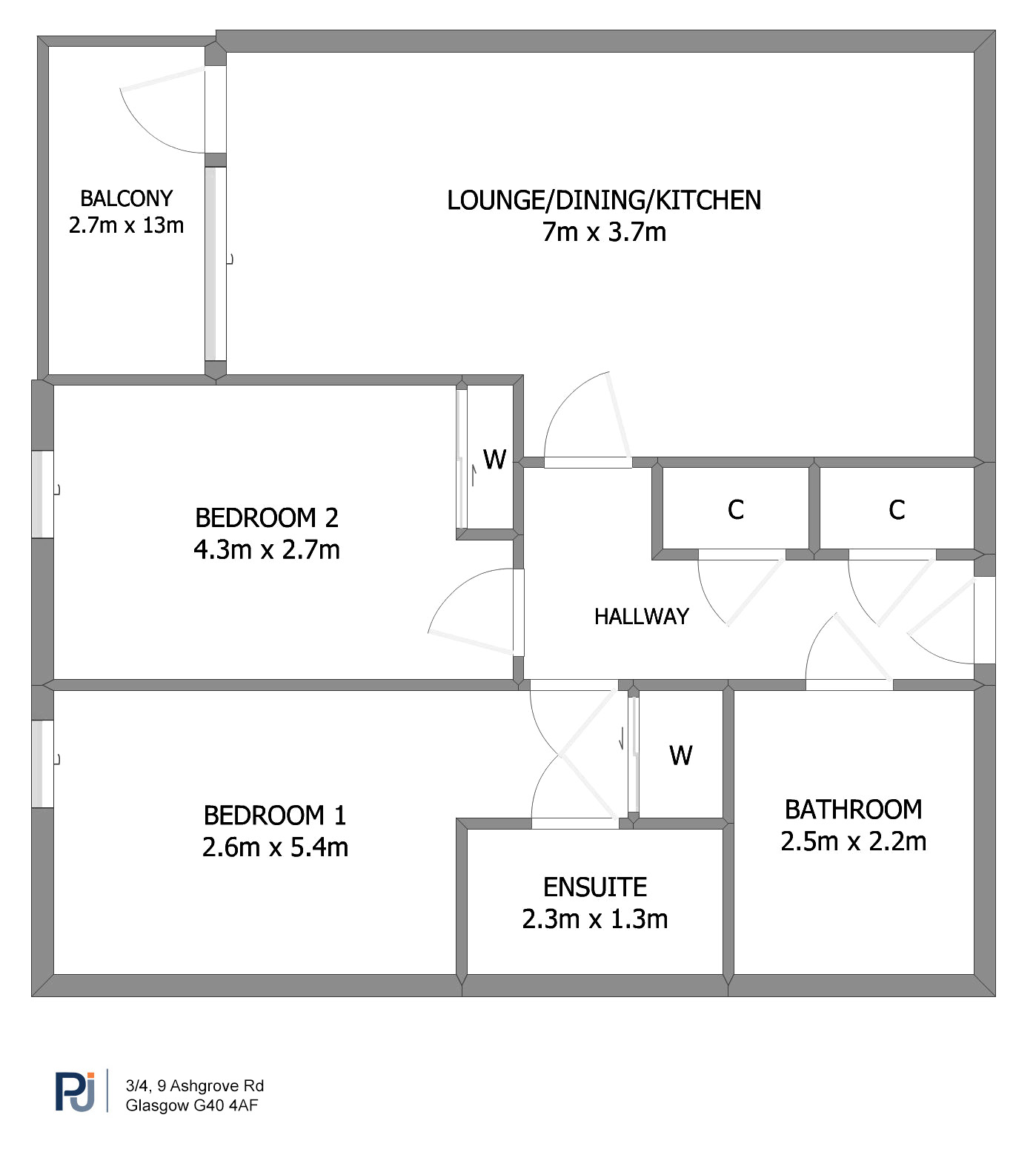
The accommodation begins with an inviting reception hallway providing access to all rooms and featuring two useful storage cupboards. The open-plan living area combines a comfortable lounge, dining space, and modern kitchen, creating a practical and welcoming layout. From the lounge, French doors open onto a private balcony, providing an ideal outdoor space to relax and enjoy the outlook.

The kitchen is fitted with a range of wall and base units, contrasting work surfaces, and an inset sink, together with integrated appliances including a fridge freezer, washer dryer, electric oven, and ceramic hob.

There are two well-proportioned double bedrooms, each with fitted wardrobes providing excellent storage. The principal bedroom benefits from an en-suite shower room, while a well-appointed three-piece bathroom completes the accommodation.

Further features include double glazing, gas-central heating, a secure door entry system, lift and stair access to all floors, and an allocated parking space. The development is set within neatly maintained communal grounds, including a landscaped garden area adjacent to the building.

The property sits in an extremely convenient location just a stones’ throw from Dalmarnock Train Station, the M74 Motorway, 24-hour Tesco, Home Bargains and various fast food and coffee outlets. The property is also on hand for a variety of amenities including nurseries, schools at both primary and secondary levels, a host of recreational facilities including the recently completed TopGolf Glasgow venue. Nearby Rutherglen Main Street provides a wider range of day-today shops, and the surrounding areas of Burnside and East Kilbride offer a more diverse range of amenities including the Plaza and Kings Gate retail parks. Also within walking distance is the Clyde Walkway and Cunningar Loop Woodland Park.

The Energy Performance rating on this property is Band C.

Property Documents

Floor Plan
  • Address Flat 3/4, 9 Ashgrove Road, Dalmarnock
  • City Glasgow
  • Postal Code G40 4AF
  • Area Glasgow

Details

Mortgage Calculator

Monthly
  • Down Payment
  • Loan Amount
  • Monthly Mortgage Payment
£
%
%

Floor Plans

image

Description:

360° Virtual Tour

Contact Information

View Listings
Dennistoun

Enquire About This Property

Similar Listings

Compare listings

Compare
Dennistoun
  • Dennistoun