Flat

  • Offers Over £139,995
Flat 1/2, 745 Springfield Road, Parkhead, Glasgow, G31 4BE
Under Offer
Flat
Flat 1/2, 745 Springfield Road, Parkhead, Glasgow, G31 4BE
  • Offers Over £139,995

Overview

  • Flat
  • Property Type
  • 2
  • Bedrooms
  • 2
  • Bathrooms

Description

A bright and immaculately presented first-floor corner apartment, constructed in 2017 and forming part of a highly sought-after development by Bellway Homes.

The development is set within well-maintained residents’ gardens and benefits from secure, allocated parking to the rear, with a designated space included with the property.

Offered to the market in true walk-in condition, the apartment boasts a high-quality specification throughout. Features include a neutral decorative finish, quality floor coverings, and a contemporary fitted kitchen complete with integrated appliances. The property further benefits from a spacious four-piece family bathroom and a stylish en-suite shower room, which was newly refurbished in 2025. Double glazing and gas-fired central heating, powered by an Ideal Logic combination boiler, ensure comfort and efficiency all year round.

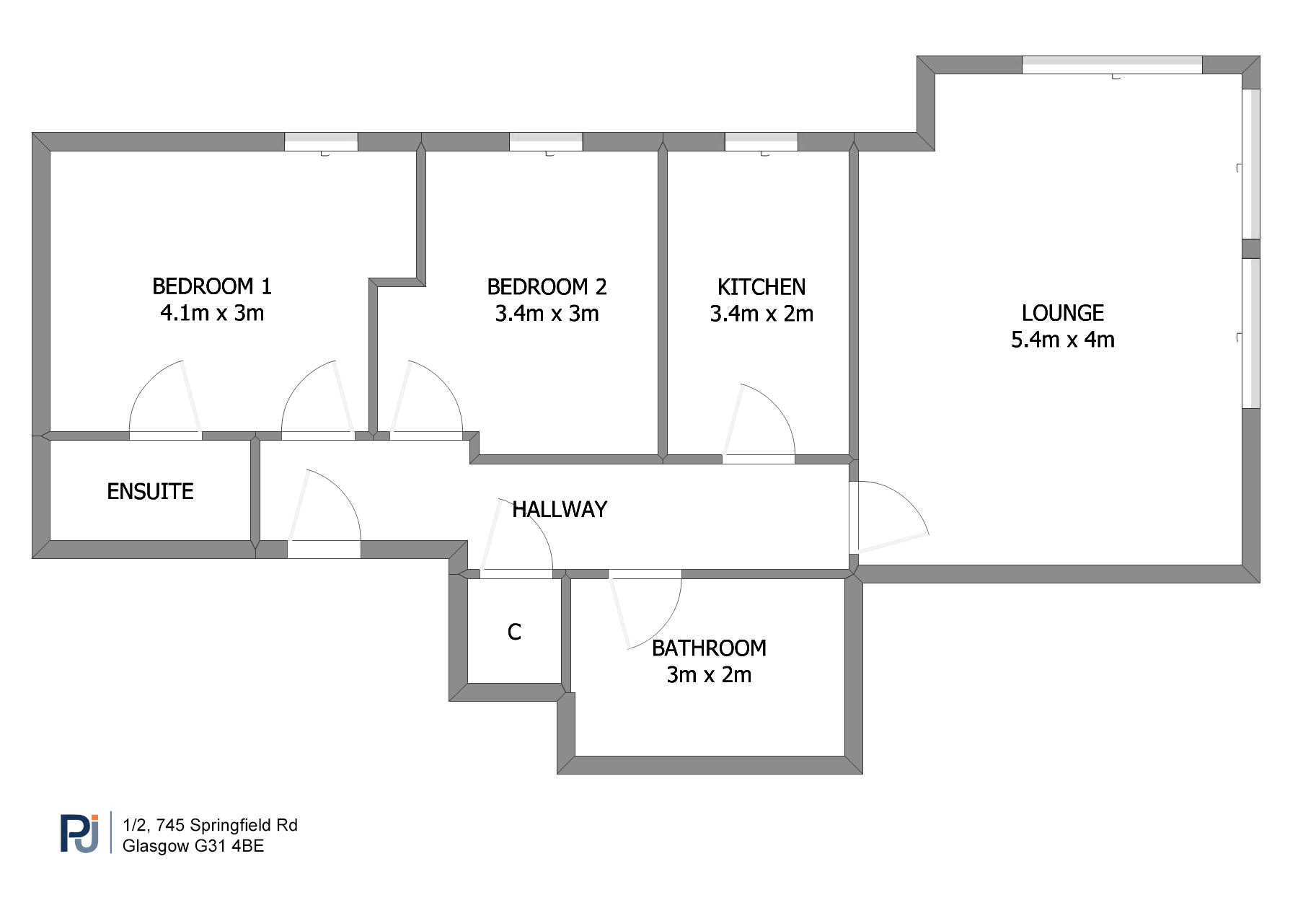
Access to the building is via a secure entry system leading to a well-maintained communal stairwell. Internally, the accommodation begins with a welcoming reception hallway, incorporating a useful storage cupboard and providing access to all principal apartments. The impressive lounge/dining room enjoys excellent natural light and open aspects to both the front and side. The separate kitchen is well-appointed with a range of base and wall-mounted units, and includes an integrated fridge freezer, electric oven, hob, extractor hood, and a freestanding dishwasher.

Both bedrooms are generously proportioned doubles, with the principal bedroom further enhanced by a beautifully re-fitted en-suite shower room. The accommodation is completed by a particularly spacious family bathroom, featuring a modern white suite and a separate shower enclosure.

Springfield Gardens is conveniently positioned for a wide range of local amenities, including shopping at Rutherglen Main Street, Parkhead Forge, and the Retail Park. For outdoor pursuits, the nearby Clyde Walkway and Cunningar Loop Woodland Park provide excellent recreational opportunities. The area is also well served by local schooling at both primary and secondary levels. Excellent transport links are readily accessible, including Dalmarnock railway station, offering swift connections to Glasgow City Centre and beyond.

The Energy Performance rating on this property is B

Property Documents

Floor Plan
  • Address Flat 1/2, 745 Springfield Road, Parkhead
  • City Glasgow
  • Postal Code G31 4BE
  • Area Glasgow

Details

Mortgage Calculator

Monthly
  • Down Payment
  • Loan Amount
  • Monthly Mortgage Payment
£
%
%

Floor Plans

image

Description:

360° Virtual Tour

Contact Information

View Listings
Dennistoun

Enquire About This Property

Similar Listings

Compare listings

Compare
Dennistoun
  • Dennistoun