Mid Terraced

  • Offers Over £185,000
50 Bullionslaw Drive, Rutherglen, Glasgow, G73 3NF
Under Offer
Mid Terraced
50 Bullionslaw Drive, Rutherglen, Glasgow, G73 3NF
  • Offers Over £185,000

Overview

  • Mid Terraced
  • Property Type
  • 3
  • Bedrooms
  • 1
  • Bathroom

Description

Being one of the larger style terraced homes within the area and benefitting from a rear conservatory and accommodation arranged over three levels, 50 Bullionslaw Drive is an impeccably presented family home occupying a generous garden plot within a well-established and highly sought-after pocket of Rutherglen.

The current owners have thoughtfully extended the property into the attic space while undertaking an extensive programme of refurbishment and upgrading, resulting in a superb home that stands out from others in the area.

The property is presented to the market in true turn-key condition. Recent improvements include renewed carpets installed within the past year, replacement internal doors throughout, and a stylishly re-fitted kitchen and bathroom. Comfort and efficiency are ensured by double glazing and a system of gas-fired central heating powered by an efficient Glow-Worm combination boiler installed approximately three years ago.

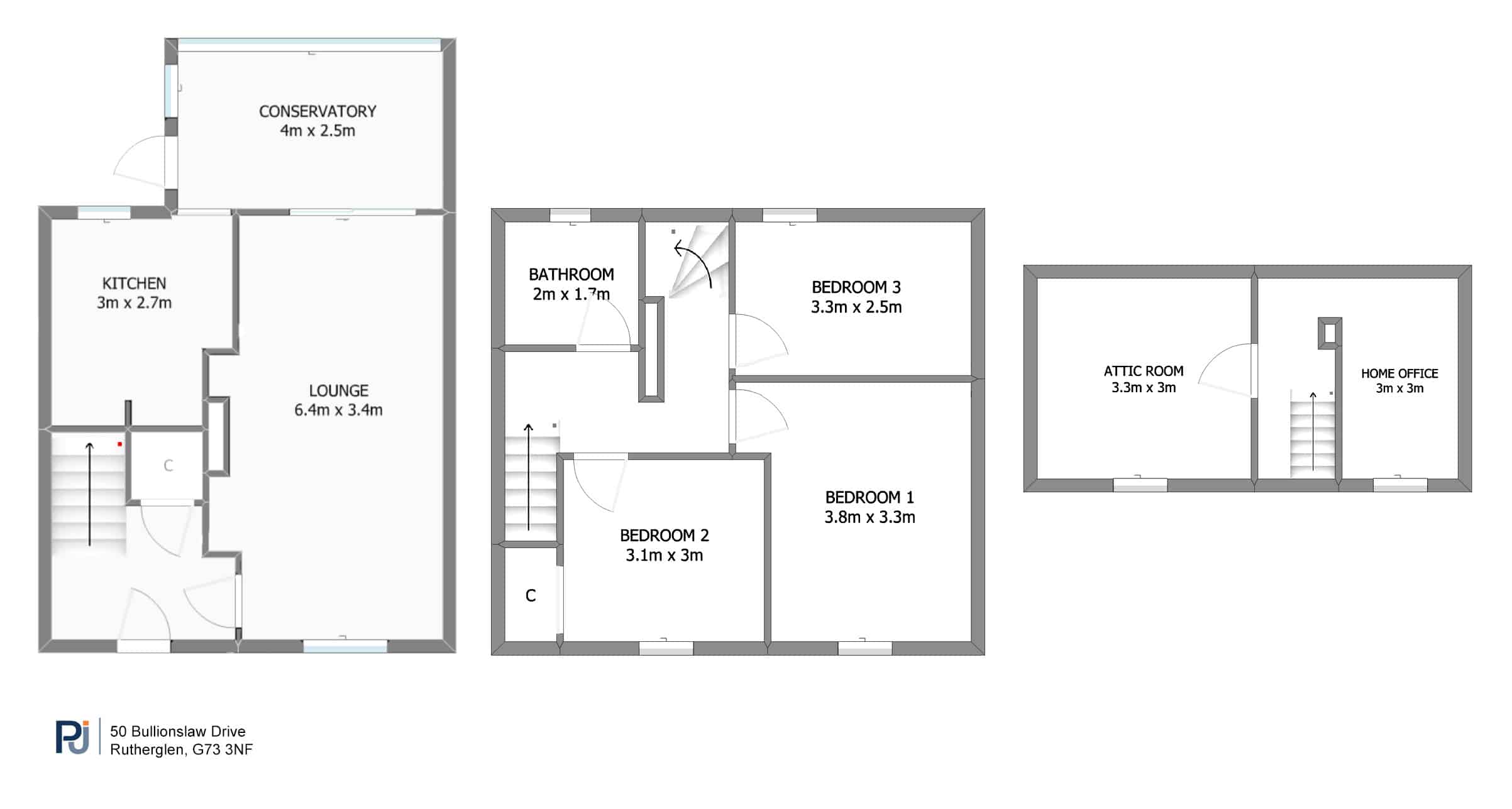
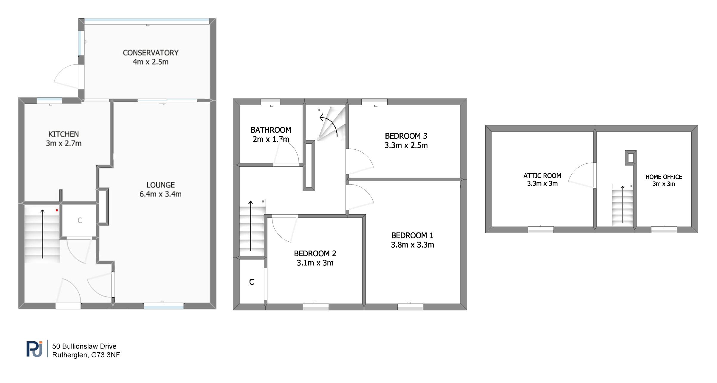
The accommodation begins with a welcoming entrance hallway featuring a fitted storage cupboard and staircase leading to the upper level. The immediately impressive lounge and dining room spans the full length of the property, creating a bright and spacious living environment, and provides direct access to a sizeable conservatory at the rear. The conservatory in turn connects to a well-equipped kitchen and offers direct access to the rear garden.

Upstairs, the upper hallway leads to three well-proportioned bedrooms and a beautifully appointed family bathroom. A further staircase provides access to a study and a generous attic room, offering flexible additional accommodation ideal for a growing family.

Externally, the property enjoys fully enclosed gardens to both the front and rear. The rear garden is particularly well designed, featuring low-maintenance artificial lawn areas, a raised seating area, and a paved patio, with a large shed positioned at the far end. The layout creates a safe and enjoyable outdoor space for children, while also being ideal for relaxing, entertaining, and alfresco dining.

The property is located within a much sought-after pocket of Rutherglen and is conveniently placed for access to all local amenities including shops, schools at both primary and secondary levels and public transport services. Nearby Stonelaw Road provides a more extensive range of shops including supermarket and Burnside train station. In addition to this, there are excellent road links close by giving easy access to Glasgow City Centre and the Central Belt motorway network system.

The Energy Performance rating on this property is Band D.

Property Documents

Floor Plan
  • Address 50 Bullionslaw Drive
  • City Rutherglen, Glasgow
  • Postal Code G73 3NF
  • Area Rutherglen, Glasgow

Details

Mortgage Calculator

Monthly
  • Down Payment
  • Loan Amount
  • Monthly Mortgage Payment
£
%
%

Floor Plans

image

Description:

360° Virtual Tour

Contact Information

View Listings
Burnside

Enquire About This Property

Similar Listings

Compare listings

Compare
Burnside
  • Burnside