End Terraced

  • Offers Over £160,000
2 Hillary Avenue, Rutherglen, Glasgow, G73 3LT
Under Offer
End Terraced
2 Hillary Avenue, Rutherglen, Glasgow, G73 3LT
  • Offers Over £160,000

Overview

  • End Terraced
  • Property Type
  • 2
  • Bedrooms
  • 1
  • Bathroom

Description

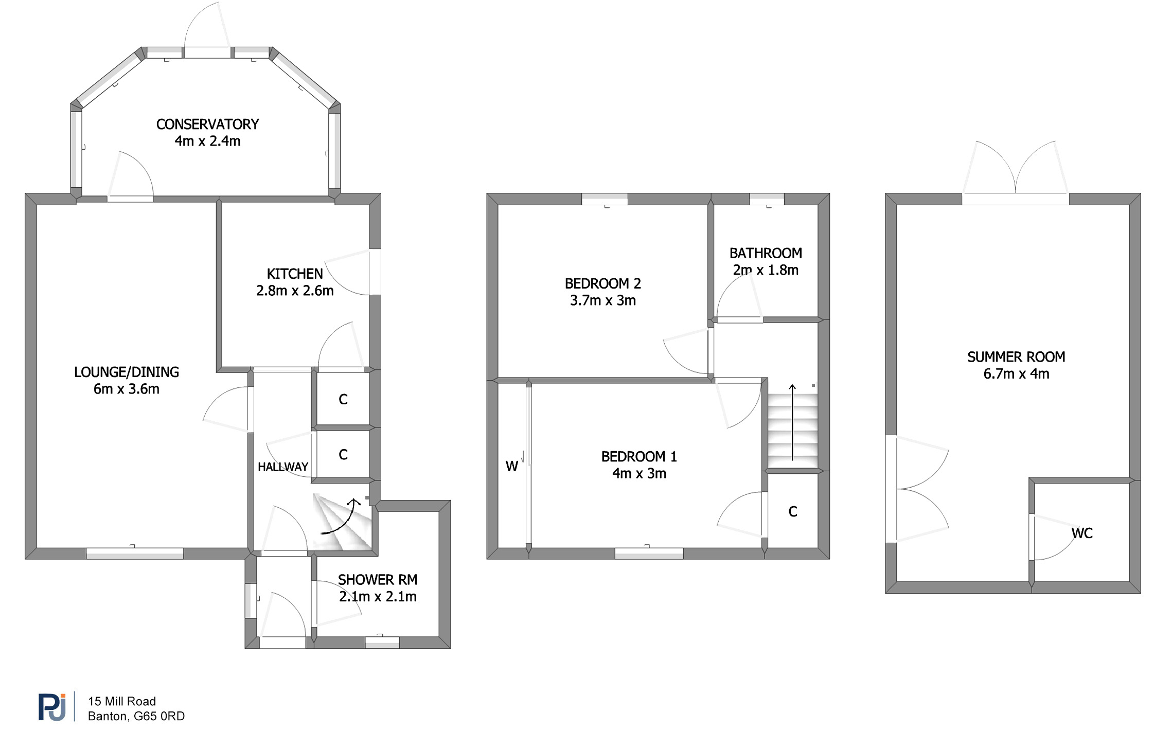
Significantly enhanced and presented in show-home condition, this stunning end-terraced villa is sure to impress. Set within expansive, meticulously maintained corner gardens, the property has undergone a series of high-quality upgrades in recent years, including a re-tiled roof, replacement double glazing and exterior front door, an efficient gas-fired central heating system, a modern kitchen and shower room, and tasteful décor with quality flooring throughout.

The property is entered via a welcoming hallway with stairs rising to the upper level. To the front, a beautifully appointed lounge opens into a contemporary kitchen, which connects to a rear hallway with useful under-stair storage and access to the rear garden. Upstairs, there are two generously proportioned double bedrooms, both with fitted wardrobes, alongside a smartly fitted shower room.

Externally, the fully enclosed gardens to the front, side, and rear are level and predominantly laid to lawn. The impressive rear garden features a shed, decorative stone-chipped area, and a large deck at the far end, ideal for entertaining or alfresco dining.

The property is located within a much sought-after pocket of Rutherglen and is conveniently placed for access to all local amenities including shops, schools at both primary and secondary levels and public transport services. Nearby Stonelaw Road provides a more extensive range of shops including supermarket and Burnside train station. In addition to this, there are excellent road links close by giving easy access to Glasgow City Centre and the Central Belt motorway network system.

The Energy Performance rating on this property is Band C

Property Documents

Home Report
Floor Plan
  • Address 2 Hillary Avenue, Rutherglen
  • City Glasgow
  • Postal Code G73 3LT
  • Area Glasgow

Details

Mortgage Calculator

Monthly
  • Down Payment
  • Loan Amount
  • Monthly Mortgage Payment
£
%
%

Floor Plans

image

Description:

360° Virtual Tour

Contact Information

View Listings
Burnside

Enquire About This Property

Similar Listings

Compare listings

Compare
Burnside
  • Burnside