End Terraced

  • Offers Over £145,000
1 Gartocher Terrace, Glasgow, G32 0HE
Under Offer
End Terraced
1 Gartocher Terrace, Glasgow, G32 0HE
  • Offers Over £145,000

Overview

  • End Terraced
  • Property Type
  • 2
  • Bedrooms
  • 1
  • Bathroom

Description

Maintained and upgraded to the highest of standards, this impeccably presented end-terrace villa enjoys a quiet residential setting and benefits from generous level gardens to both the front and rear, along with a large garage equipped with power and lighting.

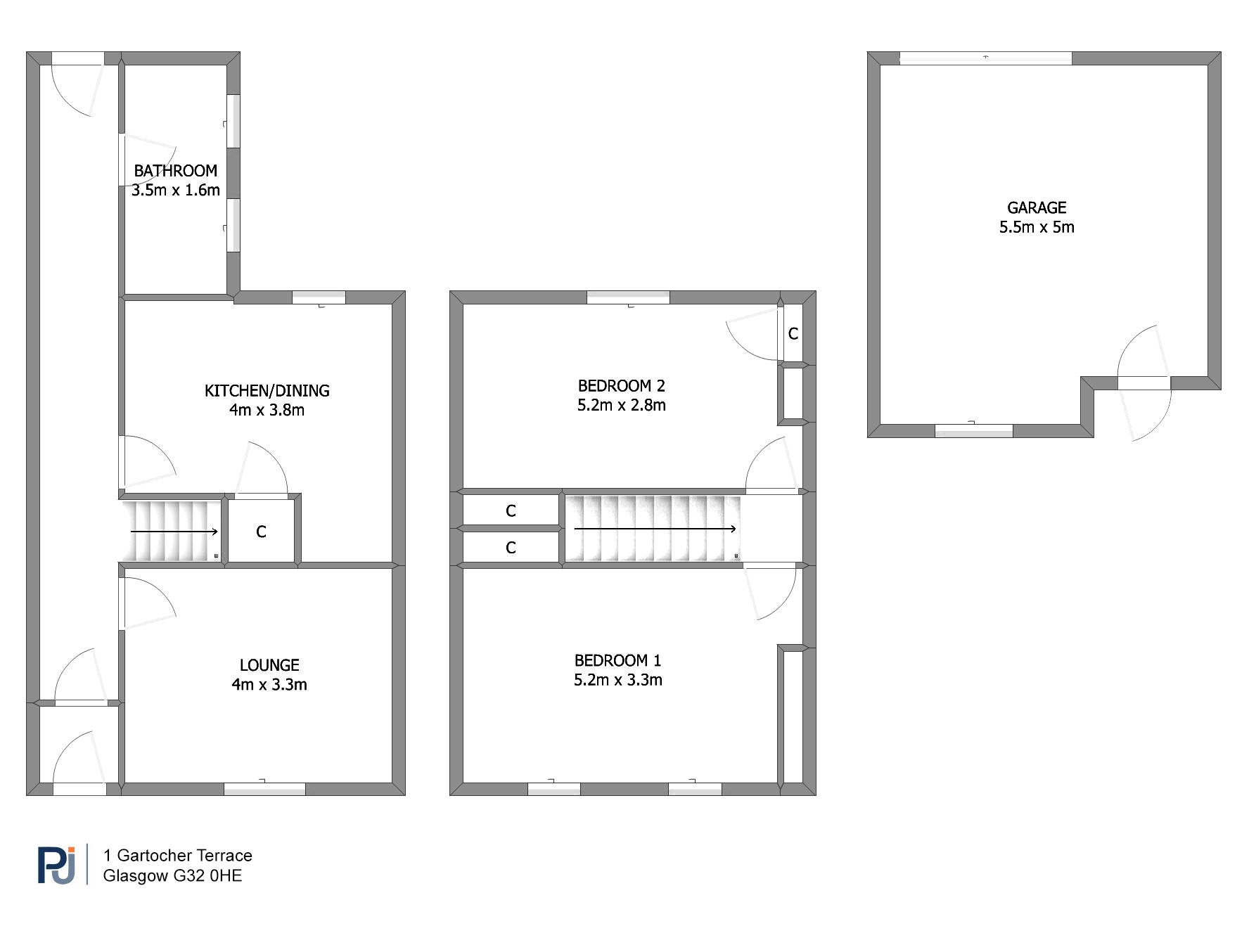
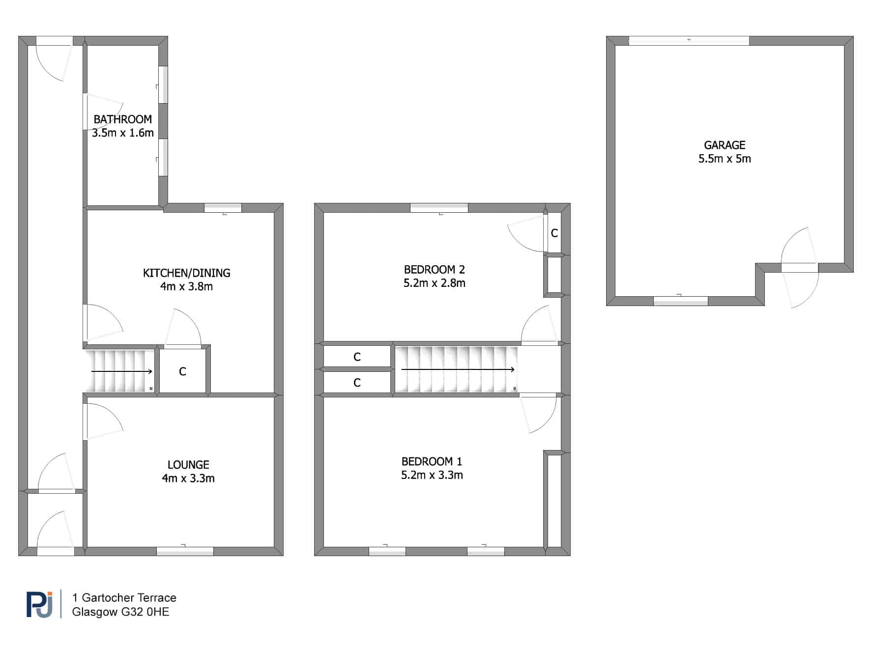
The accommodation begins with an entrance vestibule leading into a welcoming reception hallway, featuring a centrally positioned staircase to the upper level and a door providing direct access to the rear garden. The bright, well-proportioned front-facing lounge is enhanced by detailed cornicing, a decorative ceiling rose and an original fireplace, adding character and charm. To the rear, the kitchen offers ample space for a table and chairs and includes useful understairs storage. It is fitted with a range of base and wall-mounted units, integrated electric oven and hob, and space for freestanding appliances. A large, well-appointed modern three-piece bathroom completes the ground floor accommodation.

On the upper level, there are two substantial double bedrooms, both benefiting from deep storage cupboards, with one retaining an original fireplace.

Externally, the front garden is designed for low maintenance, featuring stone chippings and a privet hedge which continues along the side of the property and encloses the rear garden, complemented by fencing to the adjacent boundary. The rear garden is particularly generous, offering two lawned areas and a large, decked section, ideal for outdoor dining and entertaining. The sizeable garage provides excellent additional storage and practicality.

Further benefits include double glazing and electric heating, making this an attractive home for a wide range of buyers.

Conveniently located, the property sits within close proximity to excellent amenities, including schools at both primary and secondary levels, Shettleston Train Station, a large Tesco, and local shops. Additionally, the property is a short drive from The Fort shopping centre which provides a host of retail shops, including Marks and Spencer, restaurants and The Vue cinema. The nearby M8 motorway provides easy connections to Glasgow City Centre and Edinburgh.

The energy performance rating for this property is Band F

Property Documents

Floor Plan
  • Address 1 Gartocher Terrace
  • City Glasgow
  • Postal Code G32 0HE
  • Area Glasgow

Details

Mortgage Calculator

Monthly
  • Down Payment
  • Loan Amount
  • Monthly Mortgage Payment
£
%
%

Floor Plans

image

Description:

360° Virtual Tour

Contact Information

View Listings
Dennistoun

Enquire About This Property

Similar Listings

Compare listings

Compare
Dennistoun
  • Dennistoun