Flat

  • Offers Over £125,000
Flat 3/1, 256 Cambuslang Road , Cambuslang, Glasgow, G72 7BZ
Under Offer
Flat
Flat 3/1, 256 Cambuslang Road , Cambuslang, Glasgow, G72 7BZ
  • Offers Over £125,000

Overview

  • Flat
  • Property Type
  • 2
  • Bedrooms
  • 2
  • Bathrooms

Description

**CLOSING DATE FOR OFFERS TUESDAY 9TH DECEMBER @ NOON** Built in 2007 by NV properties, ‘Langfield Court’ is a much sought-after development consisting of twenty-six luxury apartments with off-street residents’ parking and security-controlled door entry, in a highly convenient location close to the M74 motorway link and within equidistance of the many and varied amenities upon both Cambuslang and Rutherglen Main Street.

This rare, larger-style corner apartment boasts three private balconies – one west-facing and two south-facing – offering open views and an abundance of natural light. The main living area is particularly impressive, with a bright and airy atmosphere enhanced by its dual-aspect design. The property has been tastefully decorated throughout and benefits from a stylish, extensively fitted kitchen installed in 2022, complete with a range of integrated appliances. Further benefits include modern sanitary ware, double glazing, and a gas-fired central heating system powered by an upgraded Worcester combination boiler. Early internal inspection is strongly recommended to fully appreciate the generous proportions, presentation, and prime position of this unique home.

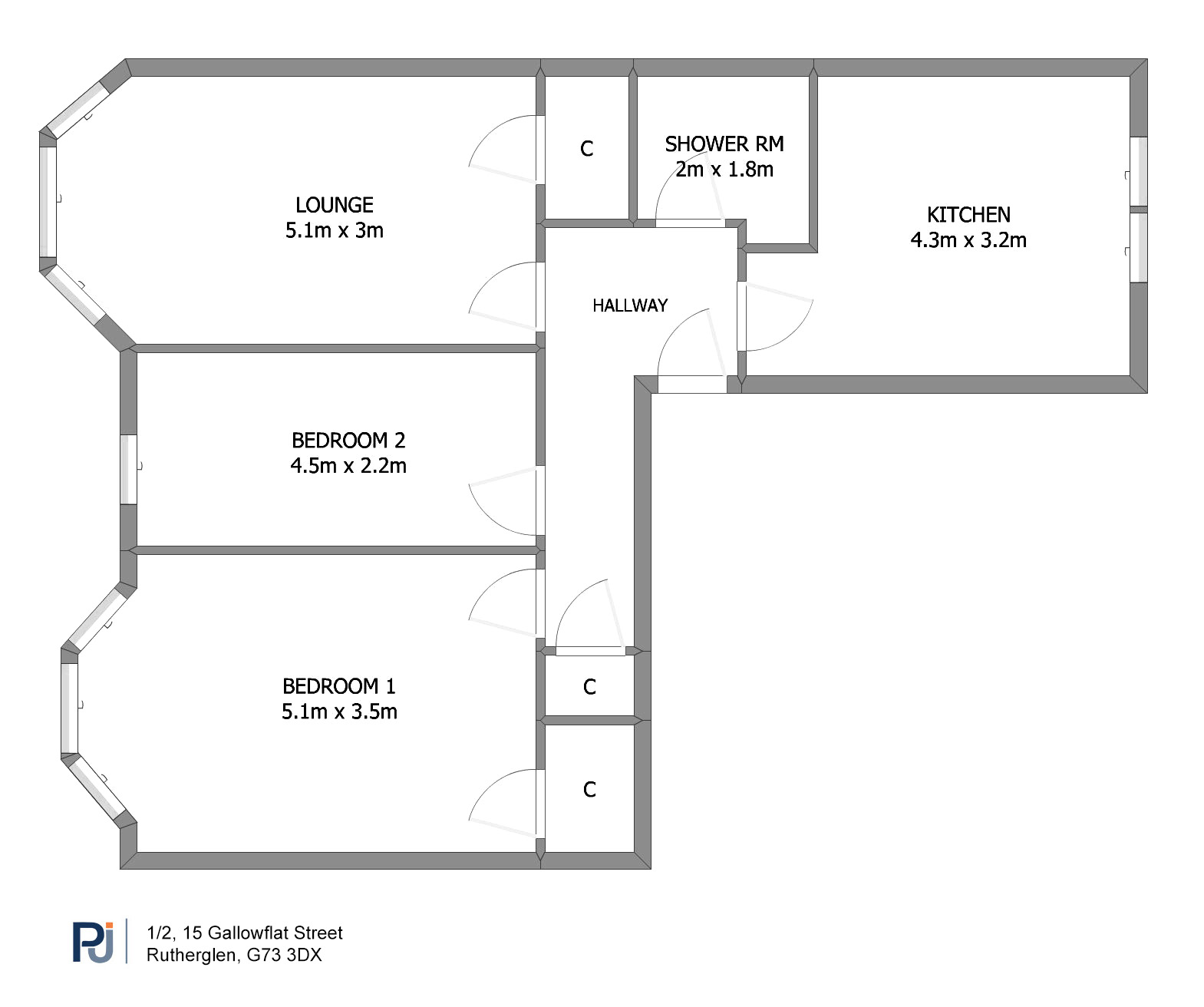
The accommodation is accessed via a residents’ stairwell with secure door entry, leading to a large L-shaped hallway with two storage cupboards. The dual-aspect lounge and dining area has a French door opening onto a private balcony and flows into the open-plan fitted kitchen, which offers a selection of base and wall-mounted units, an integrated fridge/freezer, washing machine, electric oven, and ceramic hob. There are two spacious double bedrooms with fitted wardrobes and private balconies, with the principal bedroom further enhanced by an en-suite shower room. A well-appointed bathroom with a white three-piece suite completes the layout.

The property sits in an extremely convenient location close to the M74 Motorway, 24-hour Tesco, Home Bargains and various fast food and coffee outlets at Farme Cross. The property is also on hand for a variety of amenities including nurseries, schools at both primary and secondary levels, a host of recreational facilities including the TopGolf Glasgow venue. Nearby Rutherglen and Cambuslang Main Streets provide a wider range of day-today shops, Train Stations, and East Kilbride offer a more diverse range of amenities including the Plaza and Kings Gate retail parks.

The Energy Performance rating on this property is Band B.

Property Documents

Floor Plan
  • Address Flat 3/1, 256 Cambuslang Road
  • City Cambuslang, Glasgow
  • Postal Code G72 7BZ
  • Area Cambuslang, Glasgow

Details

Mortgage Calculator

Monthly
  • Down Payment
  • Loan Amount
  • Monthly Mortgage Payment
£
%
%

Floor Plans

image

Description:

360° Virtual Tour

Contact Information

View Listings
Burnside

Enquire About This Property

Similar Listings

Compare listings

Compare
Burnside
  • Burnside