Semi Detached

  • Offers Over £295,000
21 Drumsargard Road, Burnside, Glasgow, G73 5AJ
Under Offer
Semi Detached
21 Drumsargard Road, Burnside, Glasgow, G73 5AJ
  • Offers Over £295,000

Overview

  • Semi Detached
  • Property Type
  • 3
  • Bedrooms
  • 1
  • Bathroom

Description

Set within a peaceful pocket in the heart of Burnside, this remarkable family home offers a highly versatile five-apartment layout, complete with off-street driveway parking and beautifully maintained front and rear gardens.

Presented in impeccable condition and maintained to a high standard throughout, the property features tasteful décor and quality flooring, including a mixture of 100% wool carpets and hardwood flooring, along with some recent re-plastering works. A modern fitted kitchen and a stylish contemporary shower room add to the appeal, while comfort and warmth are ensured through double glazing and a gas-fired central heating system powered by a Worcester combination boiler.

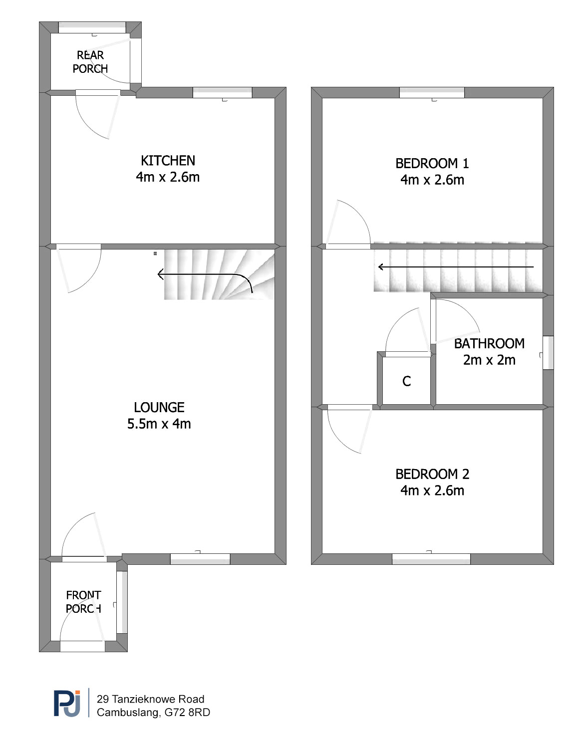
A private vestibule leads into a welcoming reception hallway, which benefits from useful under-stair storage, a staircase to the upper level, and access to all ground floor rooms. At the front, the elegant formal lounge features a marble fireplace with an inset living flame gas fire to focal wall, complemented by a broad three-light bay window that floods the room with natural light. To the rear, a bright and comfortable sitting/dining room enjoys pleasant garden views through another bay window. The adjacent kitchen provides direct access to the garden and is fitted with a range of modern base and wall-mounted units, an integrated double oven and gas hob, and space for freestanding appliances.

Upstairs, the landing hosts two handy storage cupboards and a ceiling hatch offering access to a valuable attic storage area. There are three well-proportioned bedrooms, two of which feature bay windows, while bedroom two includes built-in wardrobes offering excellent hanging and shelf space. A sleek, contemporary shower room completes the accommodation.

Outside, the front garden is enclosed and designed for easy maintenance, featuring a neat lawn, planted border, and a bloc-paved driveway for off-street parking. The delightful rear garden is fully enclosed by timber fencing and includes a lush lawn, mature shrubs and bushes, a metal shed, greenhouse, and a pergola-covered patio, ideal for entertaining or alfresco dining.

The property is conveniently positioned within walking distance of shops and amenities on Stonelaw Road. More extensive facilities can be found on Rutherglen Main Street and further afield at Kingsgate Retail Park which is only a short drive to the Southeast. Recreational pursuits are varied within the general area and include well-maintained parks, golf courses and gyms. There are excellent bus links to the City Centre and Burnside railway station is only a short walk away. There are also excellent road links close by, giving easy access to the surrounding areas and the Central Belt motorway network system.

The Energy Performance rating on this property is Band D.

Property Documents

Floor Plan
  • Address 21 Drumsargard Road
  • City Burnside, Glasgow
  • Postal Code G73 5AJ
  • Area Burnside, Glasgow

Details

Mortgage Calculator

Monthly
  • Down Payment
  • Loan Amount
  • Monthly Mortgage Payment
£
%
%

Floor Plans

image

Description:

360° Virtual Tour

Contact Information

View Listings
Burnside

Enquire About This Property

Similar Listings

Compare listings

Compare
Burnside
  • Burnside