Semi Detached

  • Offers Over £205,000
12 Thomson Grove, Cambuslang , Glasgow, G72 7JT
Under Offer
Semi Detached
12 Thomson Grove, Cambuslang , Glasgow, G72 7JT
  • Offers Over £205,000

Overview

  • Semi Detached
  • Property Type
  • 3
  • Bedrooms
  • 1
  • Bathroom

Description

** CLOSING FOR OFFERS – FRIDAY, 10TH APRIL AT 12 NOON ** Enjoying a peaceful cul-de-sac setting within the highly regarded Morriston Park development in Cambuslang, this immaculately presented three-bedroom semi-detached villa occupies a generous, south-facing garden plot and offers a stylish, move-in-ready interior.

The property has been thoughtfully upgraded, featuring a smartly re-fitted kitchen and bathroom, double glazing, and a system of gas fired central heating powered by a Vokera combination boiler installed approximately five years ago. Further enhancements include a floored and lined attic space, accessed via a pull-down ladder from the upper hallway, providing excellent additional storage.

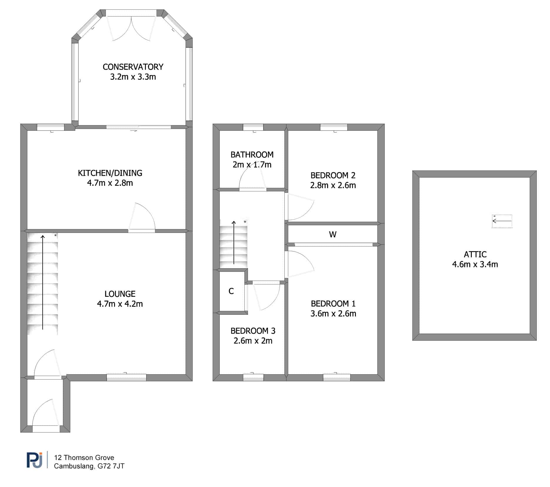
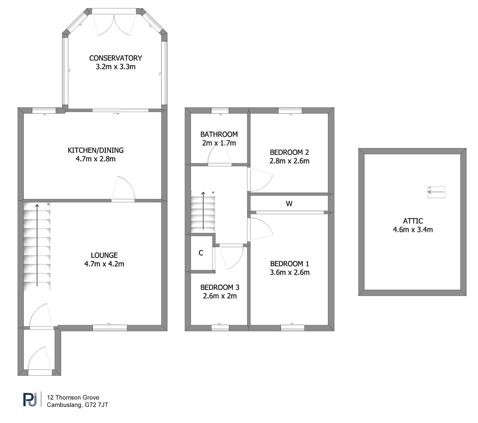
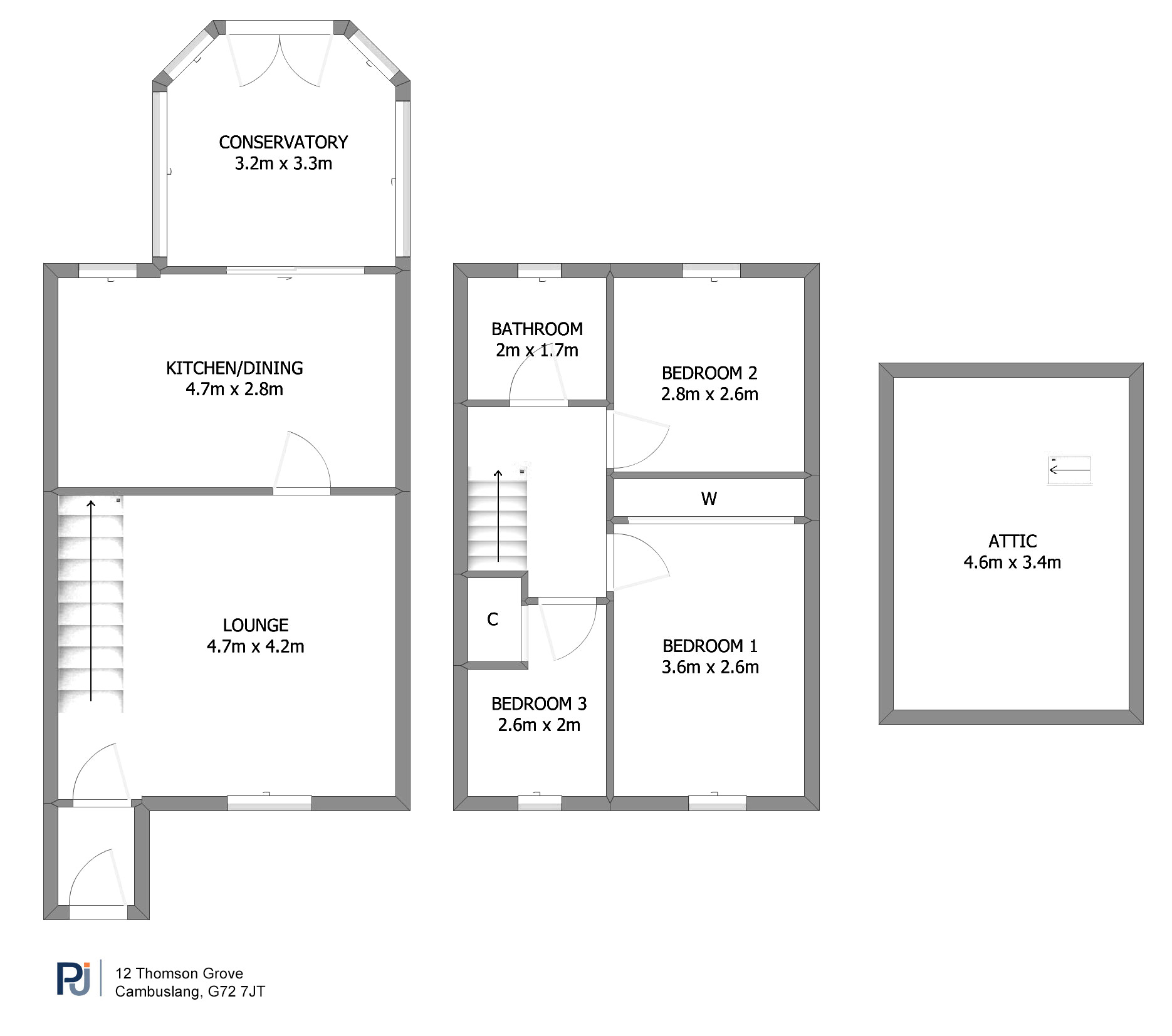
The accommodation begins with an entrance porch leading into a bright and comfortable front-facing lounge. To the rear, the contemporary dining kitchen is well-equipped with a range of modern units, including an integral oven and hob, an American-style fridge freezer, and space for a washing machine. The kitchen flows seamlessly into a spacious conservatory, providing an excellent additional living area with direct access to the garden – ideal for both everyday family life and entertaining.

Upstairs, the landing gives access to three well-proportioned bedrooms, two of which benefit from fitted storage/wardrobe space. A beautifully re-fitted, modern three-piece bathroom completes the internal accommodation.

Externally, the fully enclosed rear garden enjoys a sunny, south-facing aspect and has been designed for ease of maintenance, featuring an artificial lawn ideal for family use. To the side, there is a substantial shed/workshop, adding valuable storage space. To the front, the garden incorporates a well-tended lawn bordered by hedging and established planting, alongside a block-paved driveway providing off-street parking for two to three vehicles.

The property is conveniently situated within walking distance of the Morrison Supermarket and on hand to a range of amenities including schools at both primary and secondary levels, shops, and recreational facilities. Nearby Cambuslang Main Street offers a wider variety of shops including bars and train station which allows easy access to the surrounding areas and the City Centre. There are excellent road links close by giving access to Glasgow City Centre and the Central Belt motorway network

The Energy performance rating on this property is Band C

Property Documents

Floor Plan
  • Address 12 Thomson Grove, Cambuslang
  • City Glasgow
  • Postal Code G72 7JT
  • Area Glasgow

Details

Mortgage Calculator

Monthly
  • Down Payment
  • Loan Amount
  • Monthly Mortgage Payment
£
%
%

Floor Plans

image

Description:

360° Virtual Tour

Contact Information

View Listings
Burnside

Enquire About This Property

Similar Listings

Compare listings

Compare
Burnside
  • Burnside