Semi Detached

  • Offers Over £185,000
95 Bruntsfield Avenue, Glasgow, G53 7PA
Under Offer
Semi Detached
95 Bruntsfield Avenue, Glasgow, G53 7PA
  • Offers Over £185,000

Overview

  • Semi Detached
  • Property Type
  • 3
  • Bedrooms
  • 1
  • Bathroom

Description

A truly impressive, three-bedroom Semi-detached villa enjoying a prime location within a highly sought after and convenient locale. This fantastic home is presented to the market in excellent order having been maintained and upgraded to a meticulous standard throughout.
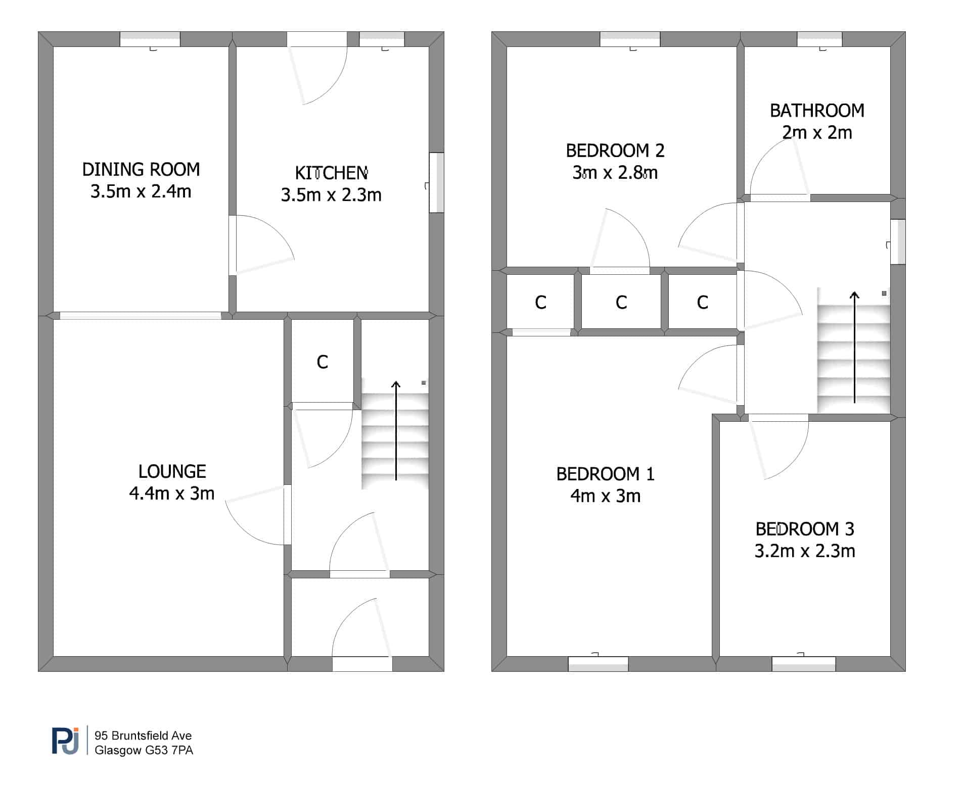
Enjoying substantial private gardens complete with a large timber constructed cabin and additional summer house this truly impressive home is presented to an exacting standard throughout. Comprising welcoming entrance hallway which provides access into the lounge and the upper levels of this home. There is a beautifully presented and generously proportioned formal lounge with open plan dining area positioned to the rear. This impressive public apartment is beautifully presented and filled with natural light. Located to the side of the dining area the modern fitted galley style kitchen boasts sleek design comprising wall and floor mounted units, co-ordinated worktops, complementary splashback, and a range of integrated appliances. Direct access is provided to gardens.

The upper landing provides access to a convenient storage cupboard, and three beautifully appointed and spacious bedrooms, the master bedroom benefits from convenient fitted storage. The accommodation is completed by a modern fitted family bathroom including a three-piece white suite, overhead shower. Furthermore, the property features a neutral decorative theme throughout, a system of gas central heating, and double-glazed window units. Externally, and a particular feature of this property are the outstanding private gardens. Positioned to the rear there are attractive level gardens incorporating a pleasant, raised decking area, large timber constructed log cabin which may be useful as a home office/gym in addition to further summer house. Perimeter fencing ensures privacy. For parking, there is a convenient driveway positioned to side.

Parkhouse is a popular residential district in the north of Glasgow, known for its peaceful suburban atmosphere and strong sense of community. Residents benefit from a good selection of local amenities including everyday shopping, cafés, schools and parks, with larger retail options such as Sainsburys also available nearby. Transport links are a major advantage, with regular bus services and easy access to the M77 and M8 motorway networks, providing straightforward travel into Glasgow city centre and beyond.

The Energy Performance Rating For This Property Is Band C.

Property Documents

Floor Plan
  • Address 95 Bruntsfield Avenue
  • City Glasgow
  • Postal Code G53 7PA
  • Area Glasgow

Details

Mortgage Calculator

Monthly
  • Down Payment
  • Loan Amount
  • Monthly Mortgage Payment
£
%
%

Floor Plans

image

Description:

Contact Information

View Listings
Shawlands

Enquire About This Property

Similar Listings

Compare listings

Compare
Shawlands
  • Shawlands