Detached

  • Offers Over £350,000
4 Oykel Drive, Robroyston, Glasgow, G33 1FE
Under Offer
Detached
4 Oykel Drive, Robroyston, Glasgow, G33 1FE
  • Offers Over £350,000

Overview

  • Detached
  • Property Type
  • 4
  • Bedrooms
  • 2
  • Bathrooms

Description

This exceptional family home is presented to the market in fabulous order throughout and exudes contemporary charm. The property enjoys a superb layout of generous apartments ideally suited to the demands of modern family life.

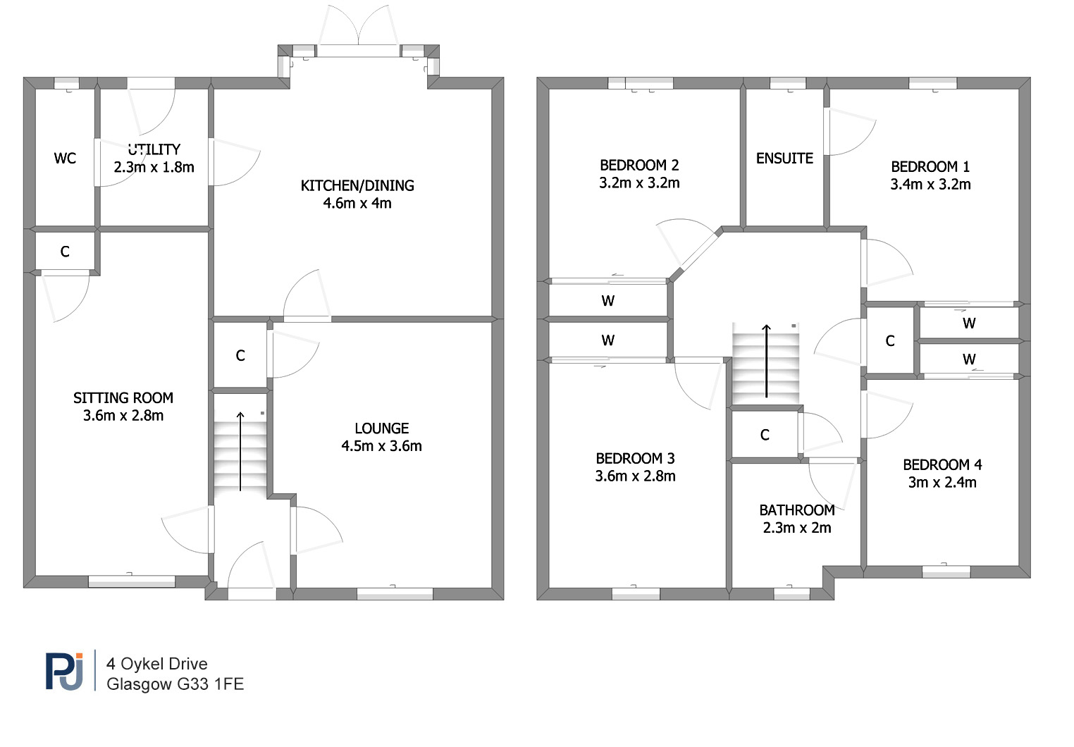
The front door opens into a reception hallway with stairs leading to the upper landing. The lounge is to the front of the house and has been enhanced by a media wall with feature fireplace. The garage has been converted to create a second public room, presently a childs play room, with the potential to fulfil a wide range of purposes. The rear of the house is a large open plan dining kitchen. The kitchen is well-equiped with a wide range of units and integrated appliances. The entire room is greatly enhanced by a box style bay window at the rear with French doors out to the gardens. A utility room provides additional storage and a home for the white goods. The ground floor is completed by a cloakroom/WC.

Upstairs the feeling of luxury continues with four spacious bedrooms. The principal bedroom is of a particularly impressive size with a well-appointed en-suite shower room servicing this bedroom. There are three further bedrooms, two of which have in-built mirrored wardrobes. A modern family bathroom completes the internal accommodation.

The front gardens provide a broad driveway with the remainder laid to lawn. The rear gardens have been laid in artificial lawn creating a family friendly space.

The property is positioned within a highly desirable modern landscaped development in Robroyston and sits on hand to an excellent range of amenities including a large supermarket and retail park, local shops and main Edinburgh to Glasgow railway stations nearby at Robroyston, Lenzie and Bishopbriggs. Glasgow City Centre can be reached via the nearby motorway link in approximately ten to fifteen minutes. In addition to this, there is easy access to the Central Belt motorway network.

The Energy Performance Rating for this property is B

Property Documents

Floor Plan
  • Address 4 Oykel Drive, Robroyston
  • City Glasgow
  • Postal Code G33 1FE
  • Area Glasgow

Details

Mortgage Calculator

Monthly
  • Down Payment
  • Loan Amount
  • Monthly Mortgage Payment
£
%
%

Floor Plans

image

Description:

360° Virtual Tour

Contact Information

View Listings
Bishopbriggs

Enquire About This Property

Similar Listings

Compare listings

Compare
Bishopbriggs
  • Bishopbriggs