End Terraced

  • Offers Over £275,000
18 Sydney Crescent, Glasgow, G40 4TQ
Under Offer
End Terraced
18 Sydney Crescent, Glasgow, G40 4TQ
  • Offers Over £275,000

Overview

  • End Terraced
  • Property Type
  • 4
  • Bedrooms
  • 4
  • Bathrooms

Description

Set within the highly regarded Athlete’s Village, this exceptional home presents a rare opportunity for discerning buyers seeking a distinctive and well-connected setting. Its contemporary design is perfectly complemented by a prime location near the River Clyde, with immediate access to the scenic Cuningar Loop Woodland Park – ideal for outdoor enthusiasts of all ages.

The property is superbly positioned for local amenities, with the renowned Glasgow Club – Emirates Arena just moments away, offering world-class sporting and fitness facilities. Excellent transport links include Dalmarnock Station (approximately 0.8 miles), providing regular services to Glasgow Central in around 6–8 minutes, as well as a nearby bus stop. The Forge Shopping Centre, including an Asda supermarket, is within a ten-minute walk, while the Clyde Gateway Trade Park – situated opposite the development – offers a wide range of amenities such as Tesco, McDonald’s, Starbucks, Subway, and a forthcoming Lidl.

This impressive end-terraced villa is arranged over three levels and occupies a larger-than-average plot, with gardens to the front, side, and rear. The rear garden benefits from a desirable southerly aspect, enjoying excellent natural light throughout the day. The home further benefits from solar panels, a Nuaire ventilation system, and a high level of energy efficiency, supported by Nordan double glazing, excellent insulation, and the development’s communal heating system – ensuring comfort and economy year-round.

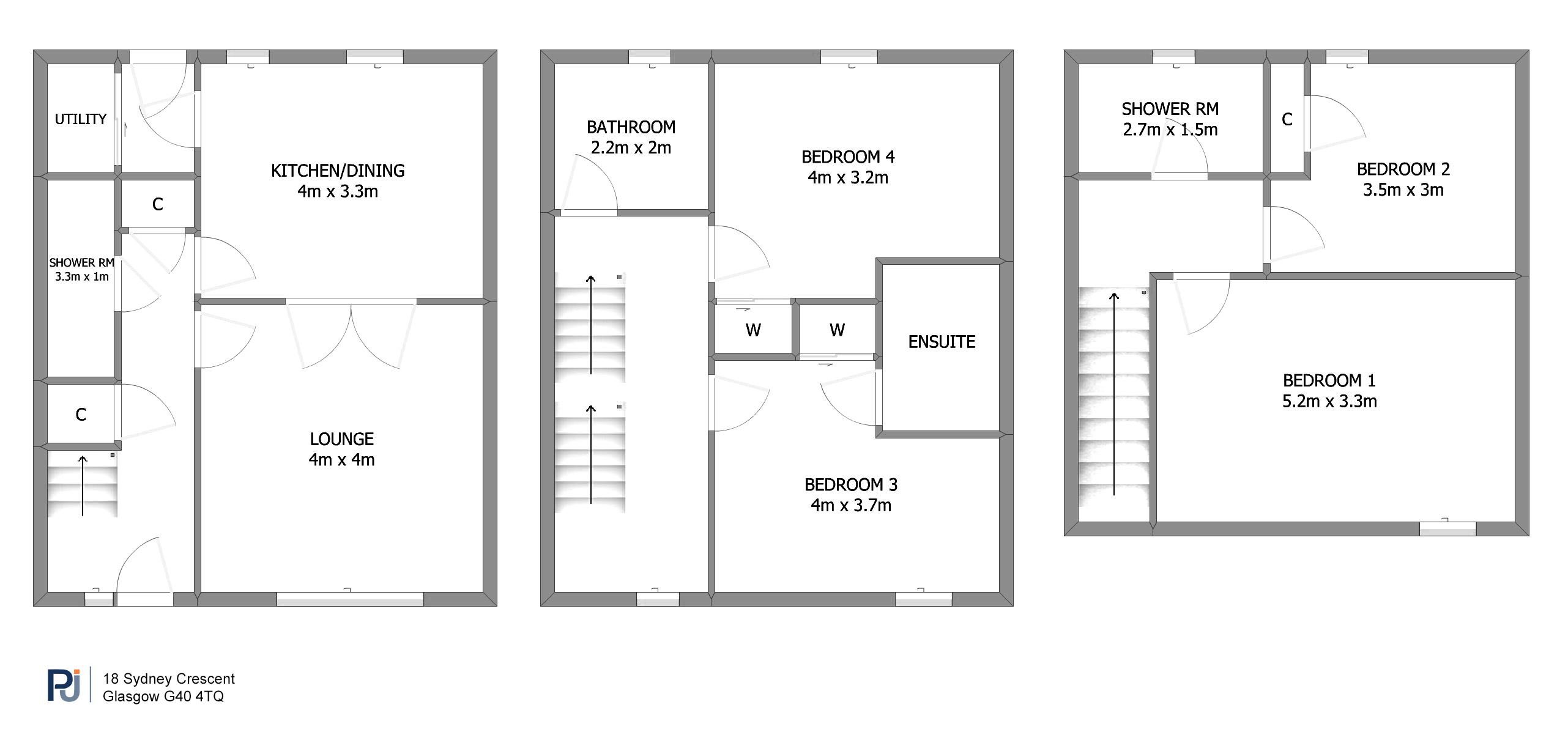
Internally, the ground floor accommodation begins with a welcoming entrance hallway, complete with under-stair storage, an additional cupboard, and access to all lower apartments, including a modern shower room. To the front, a bright and spacious dual-aspect lounge flows seamlessly through double doors into a generous dining kitchen, which in turn leads to a rear hallway with a utility cupboard and direct access to the garden.

The first-floor hosts two well-proportioned double bedrooms, one of which features fitted wardrobes and an en-suite shower room, as well as the main family bathroom. On the upper level, there are two further spacious double bedrooms along with an additional shower room, offering flexible accommodation for families or home working.

Externally, the front garden is laid to lawn for ease of maintenance, with a driveway providing off-street parking for one vehicle. The side and rear gardens are enclosed by timber fencing and feature a low-maintenance lawn, a patio area, and a garden shed – creating a practical and inviting outdoor space.

Sydney Crescent is well situated for local shopping which can be found at nearby Rutherglen Main Street, Parkhead Forge and Retail Park. There is also a 24-hour Tesco within walking distance of the property as well as the Clyde Walkway and Cuningar Loop Woodland Park. Schooling at both primary and secondary levels is available locally and there are excellent road and public transport links close by including the refurbished Dalmarnock railway station allowing easy access to the City Centre and surrounding areas.

The Energy Performance rating on this property is C

Property Documents

Floor Plan
  • Address 18 Sydney Crescent
  • City Glasgow
  • Postal Code G40 4TQ
  • Area Glasgow

Details

Mortgage Calculator

Monthly
  • Down Payment
  • Loan Amount
  • Monthly Mortgage Payment
£
%
%

Floor Plans

image

Description:

360° Virtual Tour

Contact Information

View Listings
Dennistoun

Enquire About This Property

Similar Listings

Compare listings

Compare
Dennistoun
  • Dennistoun