End Terraced

  • Offers Over £210,000
213 Trossachs Road, Rutherglen, Glasgow, G73 5PE
Under Offer
End Terraced
213 Trossachs Road, Rutherglen, Glasgow, G73 5PE
  • Offers Over £210,000

Overview

  • End Terraced
  • Property Type
  • 3
  • Bedrooms
  • 1
  • Bathroom

Description

This truly outstanding three-bedroom end-terraced villa enjoys a prime position on a south-facing garden plot within a highly sought-after pocket of Rutherglen. Built in 2013 by Persimmon Homes, the property is presented to the market in immaculate condition throughout, with early viewing highly recommended to fully appreciate the quality of accommodation on offer.

The home is finished to an exceptional standard, featuring premium floor coverings and tasteful, modern décor throughout. The sleek, contemporary dining kitchen is equipped with a range of integrated appliances, while both the downstairs w.c. and main bathroom are fitted with stylish sanitary ware and fixtures. Comfort is assured year-round, thanks to double glazing and a gas-fired central heating system.

Externally, the front of the property offers off-street parking for two vehicles and is fitted with an EV charging point. To the rear, the garden has been professionally landscaped with low maintenance living in mind. Fully enclosed and enjoying a sunny southerly aspect, it features an artificial lawn and a full-width timber deck – perfect for outdoor entertaining and al fresco dining.

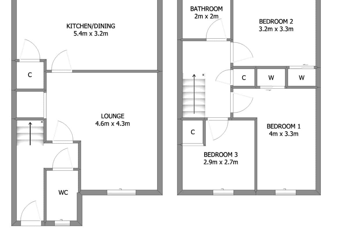
The interior layout is equally impressive. A welcoming entrance hallway includes access to a convenient cloakroom/w.c., while the front-facing lounge offers a generous and comfortable living space. At the rear of the property, the stylish dining kitchen opens directly onto the garden and includes a useful storage cupboard.

Upstairs, the landing provides access to three well-proportioned bedrooms, all of which benefit from in-built wardrobe/storage space, and has easy access to the loft which has been recently updated with lighting, flooring and shelving for great storage space. A beautifully appointed three-piece family bathroom completes the upper level.

The property sits close to a host of amenities with local shops within walking distance. More extensive facilities can be found on Stonelaw Road, Rutherglen Main Street and further afield at Kingsgate Retail Park which is only a short drive to the Southeast. Recreational pursuits within the general area include well maintained parks, golf courses, gyms, and excellent schooling at both primary and secondary levels. There are excellent bus links to the city centre and Burnside Railway Station is only a short distance from the property. There are also excellent road links close by giving easy access to the surrounding areas and the Central Belt motorway network system.

The Energy Performance rating on this property is Band C

Property Documents

Floor Plan
  • Address 213 Trossachs Road, Rutherglen
  • City Glasgow
  • Postal Code G73 5PE
  • Area Glasgow

Details

  • Price: Offers Over £210,000
  • Bedrooms: 3
  • Bathroom: 1
  • Property Type: End Terraced
  • Property Status: Under Offer

Mortgage Calculator

Monthly
  • Down Payment
  • Loan Amount
  • Monthly Mortgage Payment
£
%
%

Floor Plans

image

Description:

360° Virtual Tour

Contact Information

View Listings
Burnside

Enquire About This Property

Similar Listings

Compare listings

Compare
Burnside
  • Burnside